Wohnen am Yachthafen
Hansestadt Wismar / Seebad Wendorf – Ernst-Scheel-Straße 15

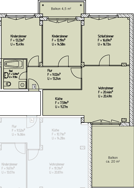
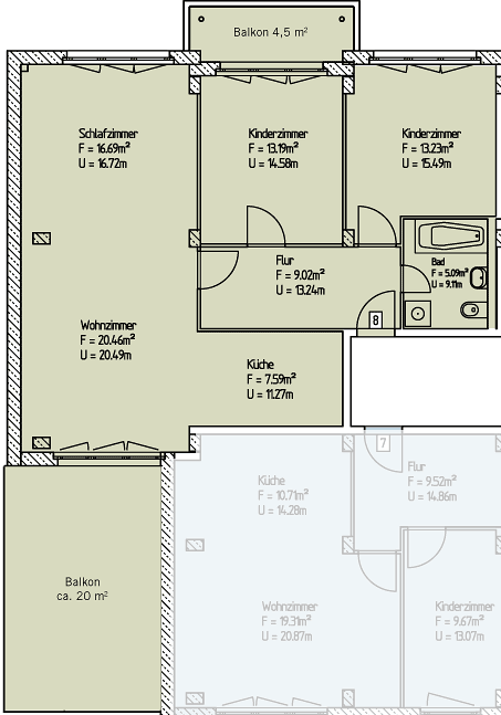
50 moderne Wohnungen im vollständig sanierten Wohngebäude

Zum Vergrößern der Grundrisse auf die Wohnung klicken.

Etagenplan als PDF speichern